-
-
September 9, 2018 at 9:41 pm
sujaysanjiv
SubscriberHello!
I am trying to model the structural response of a 6-ply birch plywood panel in pure bending. If the simulation shows good correlation to physical testing, I will move onto stiffness analysis of an aircraft fuselage made of the same panels by using adhesive or other means of fastening. The fuselage is of a SAE Aero regular-class aircraft and the aircraft is student designed.
My questions are:
1. What kind of geometry should I use ? 3D Solid Body, 2D Solid Body or 3D Surface Body?
2. The material Plywood is modeled as a homogeneous, isotropic material. In this case, how will Ansys account for the orthotropic behavior of the plywood. I am aware of plywoods which are very close to isotropic behavior so this idealization is valid I guess.
3. Is there an completely different alternative to this exercise? ACP for example ?
4. The results of the physical testing are sensitive to loading geometry so I should model the test fixtures and loading tool, right ?
We do not have material data for the 6-ply birch plywood and the people we source it from cannot be trusted, in all honesty! That is why we are testing it ourselves so we can obtain the flexural modulus, stress-strain behavior, and failure limits in bending. We do have some excellent papers on plywood and we will be comparing our results to the values in those papers.
I hope I did not create a repetitive post here. Please let me know if additional information is needed and if you have any questions.
Thanks!
-
September 11, 2018 at 1:57 am
peteroznewman
SubscriberHello Sujaysanjiv,
We use plywood to build single-use shipping crates to hold our products that we ship around the world.
I wanted accurate material properties for the 4 x 8 foot plywood panels that our custom-designed crate is made from to use in an Explicit Dynamics simulation of some parts of our shipping test.
I purchased ASTM D3043, Standard Test Methods for Structural Panels in Flexure. That standard describes four methods to test samples cut from panels. One aspect of plywood is that it can have knots and other defects in the panel. If you test a large enough sample, those flaws are too small to have a large impact on the test result. Some test methods use a much smaller sized sample, so those samples have to be free of defects so as not to skew the result.
I found a vendor, Timber Products Inspection, Inc. in Georgia, who had the equipment to test 4x4 foot samples (half a panel) in a pure bending machine, a Metriguard Model 830 panel bender. I purchased 10 panels and had them shipped to the testing facility. They cut them in half and tested 20 samples to give me the average and standard deviation of the bending stiffness and rupture strength.
The panels were tested parallel and perpendicular to the long dimension of the panel. This is not the 6-ply quality plywood you will use. This is cheap plywood used for single-use crates. You can see a significant difference in bending stiffness and rupture strength in the two directions. This resulted in an orthotropic material model in the simulation.
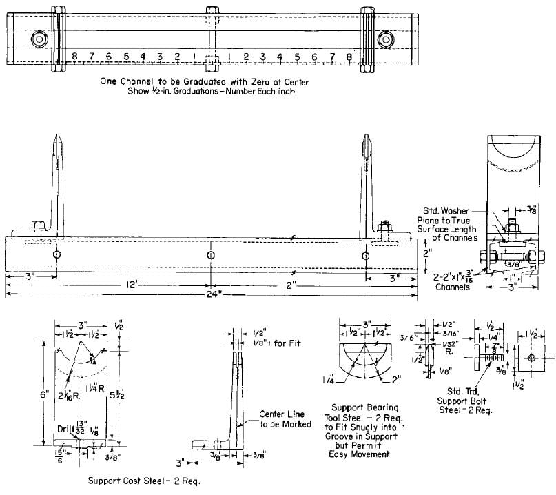
Looking at the testing apparatus in your picture, it looks like it has a short span, which means it will induce significant shear loads into the sample. More importantly, the apparatus you show does not have the rotational freedom of the end supports called for in ASTM D3043 that is needed to allow for a warped sample so that it is uniformly loaded. The first image shows an end support with a sliding interface.
The second image is an end support that includes a large roller bearing.
If you have the budget to go to a panel testing lab, you will get reliable information. If you are limited to in-house testing, you should think about adding a degree of freedom to the end supports.
Regards,
Peter
-
- The topic ‘How to approach the analysis of Plywood ?’ is closed to new replies.
-
6369
-
1906
-
1457
-
1308
-
1022
© 2026 Copyright ANSYS, Inc. All rights reserved.




